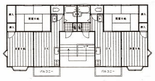
広く明るいダイニングキッチン
◆都市ガスを使用しております。
◆洋室と和室に振り分けられています。
ダイニングキッチン前にはバルコニーがあり
洗濯物が干せます。
明るい清潔なお部屋です。
洋間には出窓があります。
トイレの前に洗濯機置場があります。
浴室は給湯・シャワー・洗面台があります。
電話でのお問い合わせは 048-254-8523
〒332-0035 埼玉県川口市西青木1-24-5
| ファインC | ||||||
|---|---|---|---|---|---|---|
| 家賃 | 72,000円〜 | 共益費 | 2,000円 | |||
| 敷金・礼金 | 無し | 所在地 | 川口市並木1-20-11 | |||
| 構造・規模 | 木造2階建 | 契約期間 | 2年 | |||
| 面積 | 39.60u(2DK) | 築年数 | 平成2年築 | |||
| 駐車場 | 駐車場13,000円(要確認) | 現況 | − | |||
| 備考 |
|
|||||
| 号室 | 入居可能日 | 家賃 | 共益費 | 礼金 | 敷金 | その他 |
|---|---|---|---|---|---|---|
| 202 | 1月24日 | 74,000 | 2,000 | 無し | 無し | 清掃代3.5万 |
| − | − | − | − | − | − | − |
広く明るいダイニングキッチン
◆都市ガスを使用しております。
◆洋室と和室に振り分けられています。
ダイニングキッチン前にはバルコニーがあり
洗濯物が干せます。
明るい清潔なお部屋です。
洋間には出窓があります。
トイレの前に洗濯機置場があります。
浴室は給湯・シャワー・洗面台があります。
入居希望の方は下記までご連絡下さい!!
〒332-0035 埼玉県川口市西青木1-24-5
TEL:048-254-8523
担当:福田まで!!
このブラウザではフレームをご利用いただけません。
このブラウザではフレームをご利用いただけません。